Woodstone at York Village - York, ME
Planning + Feasibility
JHR Development of Maine, LLC
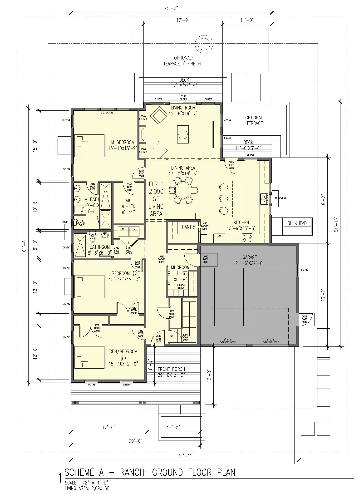
Woodstone at York Village is JHR Development’s latest planned community in the heart of historic southern Maine. Designed to integrate into the extensive surrounding protected habitat areas, the master plan for this 108-acre parcel accommodates over 110 single family, two-family and over-55 cluster housing prototypes. Form + Place’s work on Phase I of the development has focused on the design of four unique residential prototypes ranging from a single-family “ranch” style home to two-level concepts with flexible master bedroom configurations. Each prototype, drawing on contextual New England architectural vernacular, is embellished with extensive outdoor rooms, including covered front porches, outdoor patios and an option for a screened-in deck in the rear. Woodstone is clearly designed to promote an active outdoor lifestyle and is situated within walking distance of historic York Village, York Harbor and the York Golf & Tennis Club, with direct connectivity provided through a network of existing walking trails. Construction is expected to commence in the fall of 2021.
